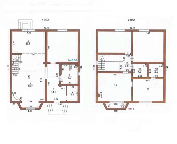
Арт. 119224287 Дом в посёлке бизнес-класса "Онтарио". Эксклюзивное предложение! Продаётся тёплый и уютный дом из клеёного бруса с продуманной планировкой и профессиональным ландшафтным дизайном. Идеально для круглогодичного проживания. О доме •Фундамент: монолитный ленточный •Стены: клеёный брус •Крыша: финская черепица •Отопление: газовый котёл + камин Планировка 1 этаж: •Прихожая с шкафом-купе •Просторная гостиная с камином, итальянская мебель ZANAVONI •Спутниковое ТВ, акустическая система •Гостевой санузел •Мастер-спальня с ванной, душем и туалетом •Кухня-студия со всей техникой •Второй свет 2 этаж: •3 спальни и кабинет •Одна спальня с домашним кинотеатром •Санузел с душевой и сауной Гостевой дом •Санузел, душевая, спальня •Отдельный хозблок Участок •Ландшафтный дизайн, хвойные растения, гортензии •Автополив •Парковка на 4 авто •Дорожки и заезд в брусчатке •Откатные ворота и калитка Инженерные обновления •2021: новый газовый котёл, бойлер, расширительные баки, 15 кВт •2023: полностью обновлены дренаж, ливнёвка, колодцы •Гидроизоляция и утепление фундамента и отмостки Дом в отличном состоянии, аккуратно эксплуатировался. Готов к заселению. Звоните — отвечу на все вопросы и организую просмотр!










































































