


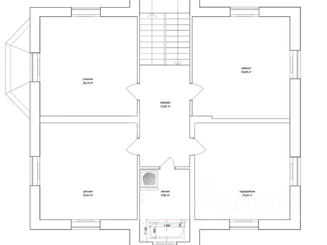
Номер объекта: 3439. Продается новый современный дом "под ключ" с мебелью в охраняемом поселке с центральными коммуникациями. • Перед началом работ сделана геологоразведка. Есть отчет. • Год окончания отделочных работ - 2025. • В доме никто не жил раньше. • Гостевая спальня со своей гардеробной и ванной комнатой расположена на первом этаже. • В гостиной дровяной камин и выход на террасу. • Высокие потолки: 3.2м ПЛАНИРОВКА: 1 этаж: прихожая, холл, кухня-столовая с кладовой, гостиная с камином и выходом на террасу, мастер-спальня с гардеробной и ванной комнатой, кабинет, санузел, котельная, гараж на 2 авто (38.84 кв.м.) 2 этаж: холл, две спальни с гардеробными, детская спальня, гардеробная, санузел. Ровный участок с ландшафтным дизайном. Уложен рулонный газон, вымощены дорожки, выполнен дренаж. Есть дом под барбекю и зона спортивной площадки. Участок огорожен забором из польского каменного блока. Фундамент: забивные сваи, связанные лентой с гидроизоляцией; установлен подсветка. Калитка, въездные ворота и гаражные ворота производства Alutech. Управление единое (с домофона или с брелока в автомобиле). ИНФРАСТРУКТУРА: Коттеджный поселок "Усадьба Жодочи" расположен в окружении векового леса в 35 км от МКАД, между Киевским и Калужским шоссе. Организовано два въезда через контрольно-пропускные пункты, ведется круглосуточное видеонаблюдение. На территории есть детская и спортивные площадки, прогулочные зоны. Широкие дороги асфальтированы и освещены. Ближайшие населенные пункты с богатой инфраструктурой (детские сады и школы, магазины, поликлиники и т.д.): д. Новоглаголево, д. Глаголево, п. Шишкин Лес. В 10 минутах езды расположился загородный клуб "Лачи" с ресторанами, банным комплексом и парком развлечений. Населенные пункты рядом: Новоглаголево, Шишкин лес, Сенькино-Секерино. --------- Эксперты агентства недвижимости NEOPOLISDOM ежедневно готовы ответить на Ваш звонок и провести для Вас показ дома в любое удобное для Вас время! Мы оказываем помощь нашим клиентам в оформлении ипотеки. Сотрудничаем с агентствами и частными брокерами на выгодных условиях!







































































































