Первичная продажа



дом сдан
Нара
4 минуты на транспорте
7 400 000 ₽
180 929 ₽/м²
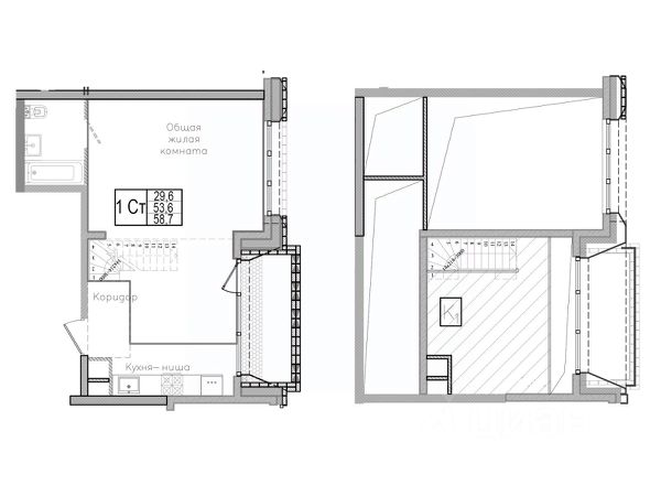
В современном жилом комплексе "Школьный" в центре НароФоминска продаётся однокомнатная квартира площадью 40.90 м² без отделки. Дом расположен в центральном районе города с развитой инфраструктурой и хорошей транспортной доступностью, что делает проект особенно удобным для семей с детьми.
Жилой комплекс "Школьный" уже введён в эксплуатацию. С верхних этажей комплекса открываются великолепные виды на набережную реки Нара и центр города. До прогулочной набережной реки Нара - около 10 минут пешком, детский сад находится в минуте ходьбы, до школы и крупного торгового центра - 10 минут.
Преимущества комплекса:
• Микрорайон с высоким уровнем комфорта.
• Благоустроенная придомовая территория: ландшафтное озеленение, детские и спортивные площадки, места для отдыха.
• Великолепные виды на набережную реки Нара и центр города.
Инфраструктура и окружение:
• В шаговой доступности расположены многочисленные объекты социальной инфраструктуры города: детские сады, школа, торговый центр, медицинские и спортивные учреждения.
• Около 10 минут до прогулочной набережной реки Нара, которая выступает пространством для отдыха всей семьи.
Транспортная доступность:
• 45 минут на авто до Москва-Сити.
• 25 минут на авто до аэропорта Внуково.
• 50 минут на экспрессе до Киевского вокзала. квартира в готовой новостройке в Наро-Фоминске.









































































































































