Мы используем куки-файлы. Соглашение об использовании

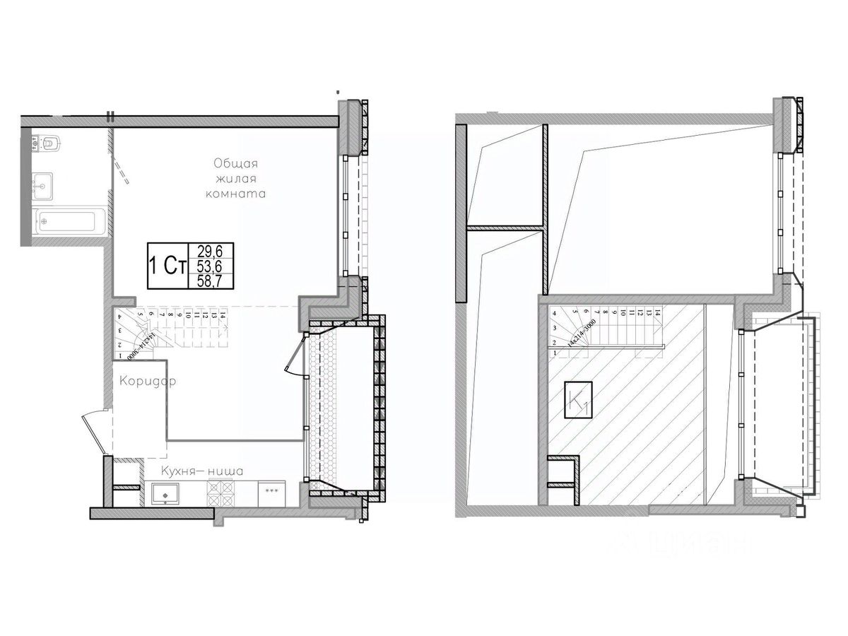
Продается 1-комн. квартира, 55,13 м²

Общая площадь55,13 м²
Жилая площадь29,6 м²
Площадь кухни5 м²
Этаж7 из 7
Год сдачи2025
ДомСдан
ОтделкаБез отделки
В современном жилом комплексе "ART" в центре НароФоминска продаётся однокомнатная квартира площадью 55.13 м² без отделки. Проект сочетает в себе камерный формат, современную архитектуру и продуманную среду для повседневной жизни в городской структуре. "ART" - это монолитный дом с продуманной этажностью и функциональными планировками. Инженерные решения и материалы подобраны с расчётом на долгий срок службы и комфортную эксплуатацию дома. Преимущества квартала "ART": • Камерный формат и ограниченное количество квартир, создающие приватную атмосферу без ощущения крупного массива. • Функциональные планировки с продуманной геометрией помещений, которые легко адаптировать под образ жизни. • Современная инженерная база: монолитная технология строительства, надёжные коммуникации и энергоэффективные решения. • Закрытая и благоустроенная придомовая территория. Инфраструктура и окружение: • Центр НароФоминска с уже сформированной городской средой: рядом школы, детские сады, медицинские учреждения, спортивные объекты и торговые центры. • Удобная транспортная доступность, позволяющая совмещать работу в столице и жизнь в более спокойном формате города. Транспортная доступность: • 45 минут на авто до Москва-Сити. • 25 минут на авто до аэропорта Внуково. • 50 минут на экспрессе до Киевского вокзала.

О квартире

Тип жилья

Новостройка

Общая площадь

55,13 м²

Жилая площадь

29,6 м²

Площадь кухни

5 м²

Высота потолков

2,75 м

Санузел

1 совмещенный

Балкон/лоджия

1 балкон

Вид из окон

Во двор

Отделка

Без отделки

О доме

Количество лифтов

1 пассажирский

Тип дома

Монолитный

Парковка

Наземная

Понравилась квартира — узнайте о ней больше

Застройщик ответит на все вопросы

Варианты отделки в ЖК

  • Без отделки
Похоже на то, что вы ищете?

Акции в ЖК «Арт»

Узнайте про персональные условия и дополнительные скидки при покупке квартиры у застройщика
Ипотечный калькулятор
  • Базовая
  • Семейная
  • ИТ-ипотека
  • 20%
  • 30%
  • 40%
  • 50%
лет
  • 10 лет
  • 20 лет
  • 30 лет
Загружаем предложения от застройщика и банков
Корпус проверен наш.дом.рф
Обновлено 9 октября 2025
  • Нет в реестре проблемных объектов
  • Застройщик не банкрот

Ещё квартиры в жилом комплексе

28 квартир в продаже · Сдан
Автор объявления

Застройщик «СИ ГК Остов»

Надежный застройщик
Строительно-инвестиционная Группа компаний «Остов» основана в 2003 году и на сегодняшний день является одним из крупнейших застройщиков Наро-Фоминского района (Московская область) и города Обнинска (Калужская область), чья главная цель заключается в обесп...
12 284 624 ₽
Цена за метр
222 830 ₽/м²
Условия сделки
долевое участие (214-ФЗ)
Бесплатно найдём новостройкуИ поможем на сделке