Мы используем куки-файлы. Соглашение об использовании
С мебельюТолько на Циан

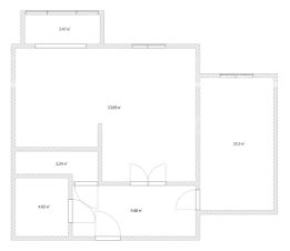
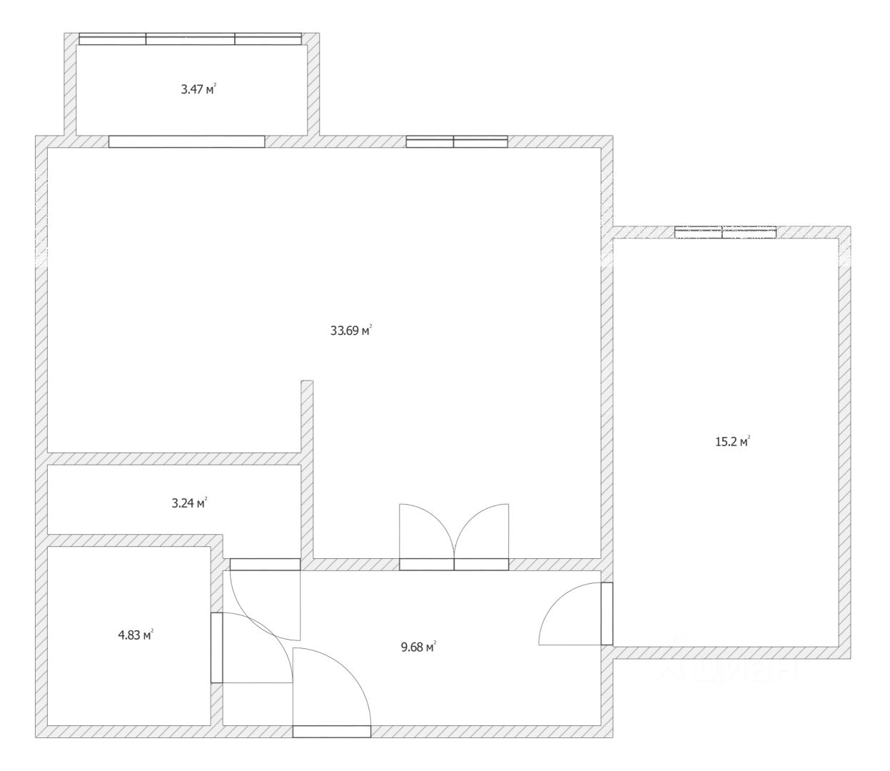
Продается 2-комн. квартира, 66,9 м²

Общая площадь66,9 м²
Жилая площадь36,9 м²
Площадь кухни12 м²
Этаж6 из 14
Год постройки2006
Продается просторная двухкомнатная квартира в центре Наро-Фоминска! Возможна ипотека! Один взрослый собственник! О квартире: Площадь: Общая площадь 66,9 кв.м. В квартире выполнен косметический ремонт. Комнаты: Две просторные комнаты: 21.69 кв.м., 15,2 кв.м. Кухня: Уютная, увеличенной площадью 12 кв.м. Дополнит атмосферу уюта просторная лоджия-веранда, где можно организовать дополнительное место. Сан/узел: раздельный. Оснащение: После продажи остается кухонный гарнитур, вся мебель и техника. Этаж: 6 этаж 14-этажного дома. Отличный вид на ул.Маршала Жукова. В доме есть лифт + 1 грузовой. Кадастровый номер: 50:26:0100205:1711. О доме и районе: Квартира расположена в кирпично-монолитном доме. Закрытая парковка во дворе со шлагбаумом. Инфраструктура: В шаговой доступности находятся: Образование: Школы 3 ( 5мин пешком) и 7, детские сады ( 2мин пешком ближайший) , Центральный дом культуры Звезда ( 3мин пешком), где происходят все значимые культурные события и базируются кружки для детей и взрослых. Медицина: Детская и взрослые поликлиники (3 мин на машине), аптеки. Магазины: Сетевые супермаркеты ("Верный", "Пятерочка", "Дикси" , "Да", строительный рынок. Культура и досуг: РДК "Звезда", ТЦ "Воскресенский пассаж", множество кафе и ресторанов. Транспортная доступность: Наро-Фоминск находится всего в 57 км от МКАД по Киевскому направлению. Удобное транспортное сообщение с Москвой: Рейсовые автобусы и маршрутные такси 309 до станции метро "Саларьево". Электричка до МЦД 4 М.Апрелевка (20-30мин), до Киевского вокзала (время в пути 45-60 минут). Условия покупки: Квартира подходит под ипотеку и материнский капитал! Быстрый выход на сделку - БЕЗ ОБРЕМЕНЕНИЙ! Возможно оформление ипотеки по ставке от 11,9% годовых. Не упустите свой шанс стать обладателем этой комфортабельной квартиры! Остались вопросы? Звоните нам в любое время, работаем без выходных, и мы с удовольствием все расскажем! Арт. 135105003
Позвоните автору
Вам ответят на все вопросы

О квартире

Тип жилья

Вторичка

Общая площадь

66,9 м²

Жилая площадь

36,9 м²

Площадь кухни

12 м²

Санузел

1 раздельный

Балкон/лоджия

1 лоджия

Вид из окон

На улицу

Ремонт

Косметический

Продаётся с мебелью

Да

О доме

Год постройки

2006

Количество лифтов

1 пассажирский, 1 грузовой

Тип дома

Монолитный

Тип перекрытий

Железобетонные

Подъезды

3

Отопление

Центральное

Аварийность

Нет

Спросите умного помощника
Получите экспертное мнение о жилье

Расположение

Ипотечный калькулятор
  • Базовая
  • Семейная
  • ИТ-ипотека
  • 20%
  • 30%
  • 40%
  • 50%
лет
  • 10 лет
  • 20 лет
  • 30 лет
Загружаем предложения от застройщика и банков
12 300 000 ₽
Эксперт от ЦианаПомощь с поиском и гарантия безопасной сделки
Цена за метр
183 857 ₽/м²
Условия сделки
свободная продажа
Ипотека
возможна
Агентство недвижимости
Документы проверены