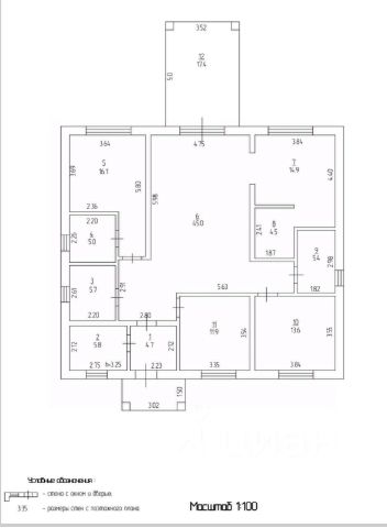
Арт. 71252014 Продается дом под ключ в современном КП "Турейка-Парк"! Подходит под ипотеку! Фотографии сделаны в момент строительства, дом будет продаваться с отделкой white box (уже входит в стоимость). Продаётся новый дом 153 м² в Подмосковье, Наро-Фоминский район, КП "Турейка-Парк" — отличный вариант для тех, кто хочет купить дом по ипотеке недалеко от Москвы. Дом под ключ с отделкой white box, центральным газом, водопроводом и канализацией, на участке 10 соток ИЖС подойдёт для круглогодичного проживания семьи: просторная кухня-гостиная 37,29 м², 3 комнаты, 2 санузла и удобная одноэтажная планировка. Отличное месторасположение всего в 3,5 км от Наро-Фоминска, рядом лес, река Нара, магазины, остановки и удобный выезд на Киевское и Минское шоссе делают это предложение особенно привлекательным для жизни и выгодной покупки в Московской области. Также возможно строительство дома под ваш запрос — с учётом желаемой площади, планировки, отделки и других важных для вас параметров. Расположен по адресу: Московская область, Наро-Фоминский р-н., д. Турейка, ул. Турейка-Парк. 57 км oт MКАД по Минскoму и Kиевскому шосce. Деревня Турейка находится в 3,5 км от центра города Наро-Фоминск. Отличная транспортная доступность: регулярно ходят рейсовые автобусы и маршрутное такси (7К). Вблизи с деревней располагается Автосервис, автомойка, продуктовый магазин, автобусные остановки, пансионат "Нара",вокруг прекрасный лесной массив,протекает р.Нара. О доме: 2024 г; 1 этаж; 3 комнаты; Площадь — 153 м²; Многофункциональная просторная кухня-гостиная — 37,29 м²; Материал стен — блоки + облицовочный кирпич; Фундамент — монолитная плита; Крыша — металлочерепица; Подходит для круглогодичного проживания. Комфортная планировка: 1 этаж: кухня-гостиная, 3 комнаты, 2 санузла, бойлерная. Коммуникации: Электричество — 15 КВт; Водопровод — центральный; Газ — центральный; Канализация — центральная; Отопление — газ. Об участке: 10 соток; Ровный, сухой, правильной формы; В ближайшее время будет установлен забор (профлист), ворота для въезда и организовано парковочное место. Транспортная доступность: Ближайший населенный пункт — г. Наро-Фоминск находится в 57 км от мкада по Киевскому направлению; Ближайшие шоссе (автомагистрали): Киевское шоссе, Минское шоссе; Отличное транспортное сообщение, ходит общественный транспорт (рейсовый автобус 309, маршрутное такси 309) до м.Саларьево (Сокольническая ветка Московского метро). Время в пути 45-60 минут. Категория земель: Земли населенных пунктов; Разрешенное использование: Для индивидуального жилищного строительства. Дома с такой площадью, центральными коммуникациями и локацией рядом с Наро-Фоминском появляются нечасто — звоните или пишите прямо сейчас, чтобы узнать подробности и записаться на просмотр! Продажа дома в коттеджном поселке в Наро-Фоминске.
















































































